Bilocale in affitto

Milano, Via Gaudenzio Ferrari - Porta Ticinese
€ 1.250 / mese
2 locali 2 locali
56 Mq 56 Mq
1 bagno 1 bagno

Bilocale in affitto

Milano, Via Gaudenzio Ferrari - Porta Ticinese

Descrizione annuncio

Milano Via G. Ferrari:

LIBERO DA SUBITO

Nel centro storico, fra la Darsena e le Colonne di San Lorenzo, in una traversa di corso Ticinese e corso Genova, si trova la via Gaudenzio Ferrari in un quartiere oggi molto rivalutato, alla moda, dove i palazzi di ringhiera ricordano la Milano di un tempo: di giorno molto frequentato per i mercatini, le gallerie d’arte, le botteghe degli artigiani; di sera le Colonne di San Lorenzo, la Darsena ed i Navigli, con le mille luci dei locali e dei ristoranti, creano una delle atmosfere più suggestive e affascinanti della città.

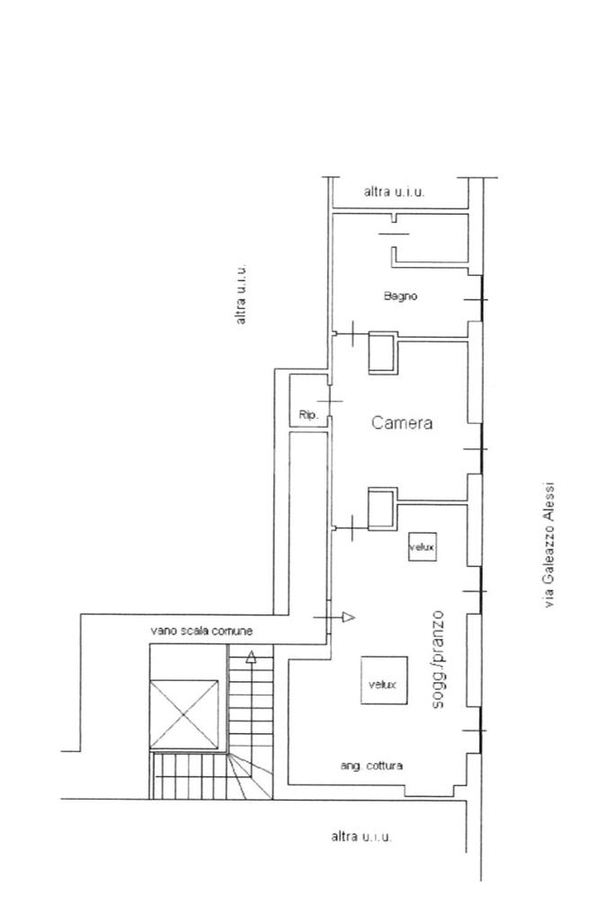
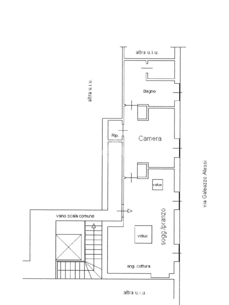
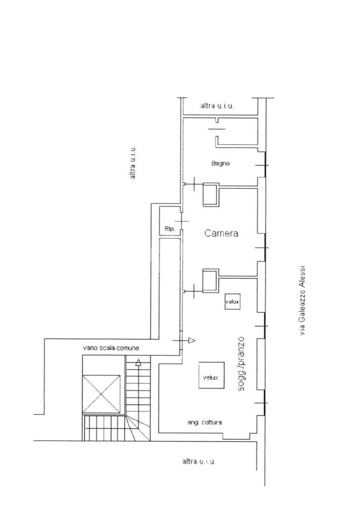
Ed è proprio in questo incantevole contesto che proponiamo un bilocale al sesto e ultimo piano con ascensore nella tranquilla e silenziosa via Gaudenzio Ferrari.

L’appartamento, termoautonomo, è così composto: ingresso su ampio soggiorno con cucina a vista, camera da letto con armadi su misura, cabina armadio e condizionatore, bagno finestrato con vasca, ripostiglio/lavanderia.

La richiesta è di euro 1.250,00 mensili + euro 100,00 mensili circa di spese condominiali.

L’appartamento è completamente arredato e pronto per essere abitato.

Nelle immediate vicinanze i mezzi di trasporto pubblico consentono di arrivare rapidamente in tutta Milano: la MM2 verde con le fermate di Porta Genova o Sant’Agostino; gli autobus 94, 74 e 325; i tram 2, 3, 9 e 14.

L’Università Cattolica e la Bocconi sono a due passi, Piazza Duomo si raggiunge a piedi in 15 minuti.

La presente descrizione è puramente indicativa e non rappresenta un elemento contrattuale.

Per ulteriori informazioni oppure fissare un appuntamento può contattarci anche tramite WhatsApp al numero 393.8740920.

Mostra tutto

Nelle vicinanze

Trasporto pubblico Trasporto pubblico
Sant'Agostino
Sant'Agostino
590 m
Porta Genova FS
Porta Genova FS
630 m
Milano Porta Genova
Milano Porta Genova
580 m
Milano Nord Cadorna
Milano Nord Cadorna
1,5 Km
Corso Genova Via Ariberto
Corso Genova Via Ariberto
190 m
Ricariche auto elettriche Ricariche auto elettriche
A2A Piazzale Cantore
200 m
Autorimessa Ariberto Lombarda Parking
260 m
A2A Stazione di Porta Genova
460 m
A2A Isola Digitale S.Agostino
610 m
A2A Università Cattolica
890 m
Scuole Scuole
Scuola Professionale Femminile Laura Solera Mantegazza
330 m
Scuola Primaria F. Conforti - B. Avogadro
330 m
Scuola Primaria Ariberto
410 m
Scuola Paritaria Istituto Leopardi
530 m
Od'A Palestra Artistica
530 m
Farmacia Farmacia
Farmacia Genova
150 m
Farmacia
240 m
Farmacia Sant'Agostino
380 m
Nazionale
390 m
Farmacia Sant'Eustorgio
390 m
Ospedali Ospedali
Ospedale San Giuseppe
950 m
Casa di Cura del Policlinico
1,2 Km
Poliambulatorio Sassi
1,3 Km
Ospedale Gaetano Pini
1,4 Km
Casa di Cura La Madonnina
1,5 Km
Supermercati Supermercati
Auchan
170 m
NaturaSì
220 m
Pam Local
360 m
Superpolo
400 m
Bio c' Bon
600 m
Negozi Negozi
Panificio Lia
160 m
Carrefour Express
210 m
Negozi
210 m
Yamamay
220 m
Max & Co.
220 m
Bar Bar
Bottega del vino La coloniale
170 m
Vista Darsena
260 m
Big Store de Milàn
280 m
Tongs
340 m
Morgante cocktail & soul
360 m
Ristoranti Ristoranti
Daniele
70 m
Al Porto
200 m
Ristoranti
210 m
Da Willy
220 m
La Playa di Taormina
240 m
Mostra tutto

Caratteristiche

Rif.:
61120256
Piano:
6 di 6 con ascensore (Piano alto)
Camere da letto:
1
Arredamento:
Completo
Condizionamento:
Autonomo
Ascensore:
Mostra tutto
Prezzo Prezzo
€ 1.250 / mese
Spese annue Spese annue
€ 1.200

Classe Energetica

G
G
G
G
G
G
G
G
G
EP globale non rinnovabile:
233.16 kW h/m² anno
EP globale rinnovabile:
233.16 kW h/m² anno
EP invernale del fabbricato:
EP estiva del fabbricato:
Anno di costruzione:
1900
Riscaldamento:
Autonomo
Tipo impianto:
A radiatori
Tipo alimentazione:
Metano

Ti interessa visionare l'immobile?

Fissa un appuntamento  Fissa un appuntamento

Richiedi informazioni

* Questi campi sono obbligatori
Affiliato
Abc Tecnosviluppo Srl
Viale Coni Zugna, 52 20144 Milano (MI)

Il nostro staff


  • Ludovica Cruscomagno
    Coordinatrice

  • Giuseppe Trumino
    Affiliato

  • Davide Valenziano
    Responsabile
Viale Coni Zugna, 52 20144 Milano (MI)
Zona: Centro - Coni Zugna - Genova - Papiniano - De Amicis
Mostra su mappa
Orari: lunedì - venerdì 9.00 - 12.30 - 14.30 - 20.00 sabato 9.00-18.00
Affiliato
Abc Tecnosviluppo Srl
Viale Coni Zugna, 52 20144 Milano (MI)

2025 Tecnocasa Franchising S.p.A. - P. IVA 08365160152 - Via Monte Bianco 60/A 20089 Rozzano (MI). Ogni agenzia ha un proprio titolare ed è autonoma. Privacy policy | Policy utilizzo | Cookie policy